Description

Designed for seamless living, Downtown UAQ | Sobha Realty blends modern convenience with coastal charm. Community hubs, open promenades, and cultural landmarks shape a walkable cityscape where every turn invites connection and discovery. From boutique shopping and art galleries to wellness spaces and waterfront cafés, life here is curated for comfort and inspiration. Every destination is thoughtfully placed—keeping you close to the people, places, and moments that matter. With the horizon as your backdrop, this is where every day feels like a new beginning.

Overview

  • ID 2297
  • Type
  • Year Built 2025
  • Address Umm Al Quwain
  • Country United Arab Emirates
  • Province/State
  • City/Town

Details

  • Property ID 2297
  • Price 4 M AED / month
  • Property Type
  • Year Built 2025
  • Garage area 50 SqFt

Floor Plans

1 Bedroom Apartment (Type A)

  • Size: 565.21 Sq Ft
  • Bedrooms: 1

1 Bedroom Apartment (Type A) UNIT : 1 BEDROOM + 1 POWDER ROOM + 1 BALCONY SUITE : 478.78 - 478.89 SQ.FT. BALCONY : 86.22 - 86.33 SQ.FT. TOTAL : 565.10 - 565.21 SQ.FT.

1 Bedroom Apartment (Type B) UNIT : 1 BEDROOM + 1 POWDER ROOM + 1 YARD SUITE : 494.39 SQ.FT. YARD : 106.67 SQ.FT. TOTAL : 601.06 SQ.FT.

1 Bedroom Apartment (Type C) UNIT : 1 BEDROOM + 1 POWDER ROOM + 1 YARD SUITE : 478.89 SQ.FT. YARD : 115.82 SQ.FT. TOTAL : 594.71 SQ.FT.

1 Bedroom Apartment (TypeD) UNIT : 1 BEDROOM + 1 POWDER ROOM + 1 BALCONY SUITE : 494.49 SQ.FT. BALCONY : 86.22 SQ.FT. TOTAL : 580.71 SQ.FT.

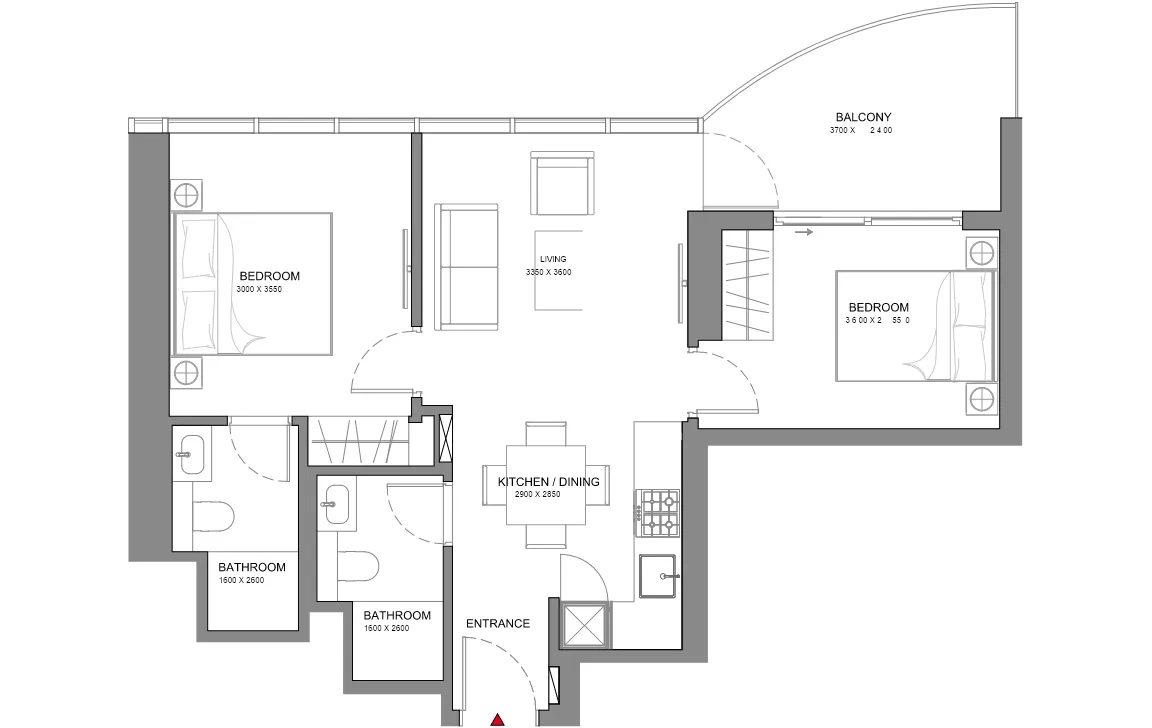
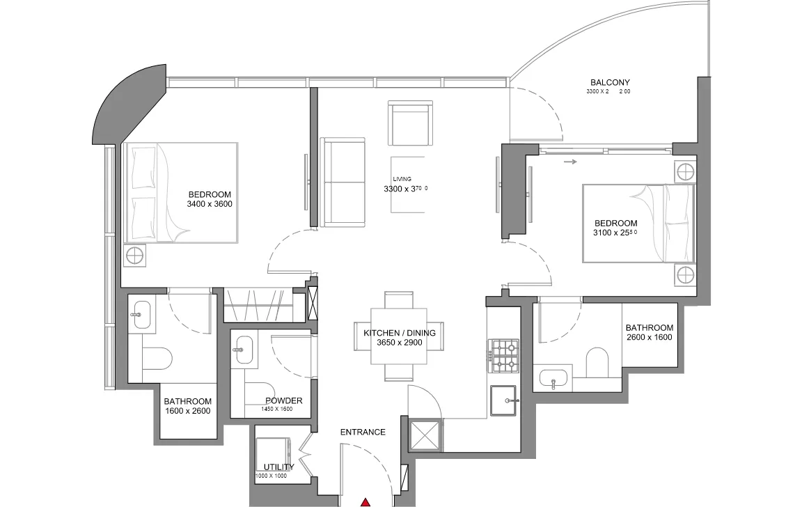
2 Bedroom Apartment (Type A) UNIT : 2 BEDROOM + 1 POWDER ROOM + 1 BALCONY SUITE : 680.82 - 690.50 SQ.FT. BALCONY : 86.54 SQ.FT. TOTAL : 767.36 - 777.05 SQ.FT.

2 Bedroom Apartment (Type B) UNIT : 2 BEDROOM + 1 BALCONY SUITE : 634.10 - 643.68 SQ.FT. BALCONY : 97.74 - 97.84 SQ.FT. TOTAL : 731.84 - 741.42 SQ.FT.

2 Bedroom Apartment (Type C) UNIT : 2 BEDROOM + 1 BALCONY SUITE : 1,094.37 SQ.FT. BALCONY : 53.07 SQ.FT. TOTAL : 1,147.43 SQ.FT.

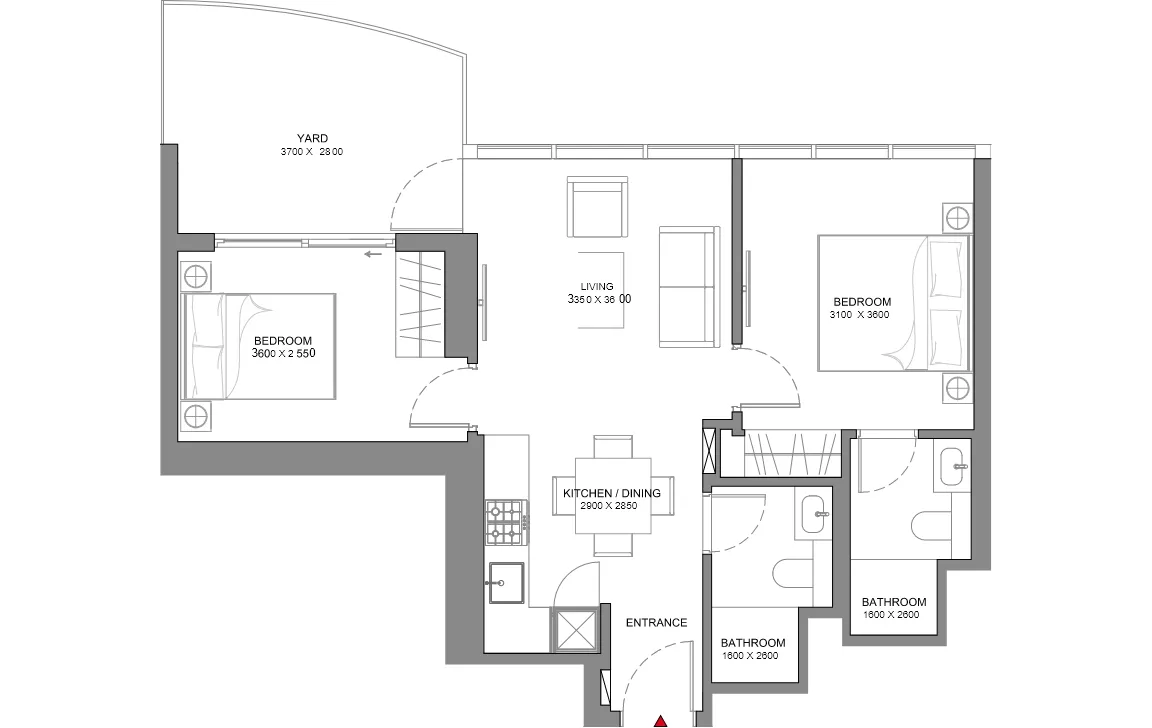
2 Bedroom Apartment (Type D) UNIT : 2 BEDROOM + 1 YARD SUITE : 634.32 SQ.FT. YARD : 127.88 SQ.FT. TOTAL : 762.19 SQ.FT.

3 Bedroom Duplex (Type A) UNIT : 3 BEDROOM + 1 POWDER ROOM + 1 MAID ROOM + 1 BALCONY SUITE : 1,825.23 SQ.FT. BALCONY : 342.61 SQ.FT. TOTAL : 2,167.85 SQ.FT.

3 Bedroom Duplex (Type B) UNIT : 3 BEDROOM + 1 POWDER ROOM + 1 BALCONY SUITE : 1,868.94 SQ.FT. BALCONY : 342.94 SQ.FT. TOTAL : 2,211.87 SQ.FT.

3 Bedroom Duplex (Type C) UNIT : 3 BEDROOM + 1 POWDER ROOM + 1 MAID ROOM + 1 BALCONY SUITE : 1,863.98 - 1,866.46 SQ.FT. BALCONY : 342.94 SQ.FT. TOTAL : 2,206.92 - 2,209.40 SQ.FT.

Attachments

so1c

webp document

Download

Compare

Urban Luxe Realty

    Have Questions?

    Our Team Is Ready to Assist






    Min length: 2 characters, Max length: 5 characters