Description

Sobha Elwood, a massive development spanning 10 million Sq. Ft., is elegantly situated within a serene and sustainable environment, where 10,000+ trees adorn 26% of the site area. Embodying the ethos of ‘The Canvas of Nature,’ Sobha Elwood epitomises luxury living. Each residence is a meticulously designed masterpiece, seamlessly integrating with the lush surroundings.

The landscape (with dedicated 47% open space and parks) and parks here are inspired by the world’s seven largest forests – from the Baobab to the Amazon rainforest – showcasing an array of trees from the most mystical and enchanting woodlands. This exclusive community features premium villas in 4, 5, and 6-bedroom configurations, each crafted to envelop residents in a tranquil and natural environment.

Overview

  • ID 2297
  • Type
  • Year Built 2025
  • Address Al Yufrah 1 - Dubai - United Arab Emirates
  • Country United Arab Emirates
  • Province/State

Details

  • Property ID 2297
  • Price 8 M AED
  • Property Type
  • Property Label
  • Year Built 2025

Floor Plans

4 Bedroom Villa (Type A - Ground Floor)

  • Size: 4995 Sq Ft
  • Bedrooms: 4

4 Bedroom Villa (Type A - Ground Floor) UNIT : 4 BEDROOM + 1 POWDER ROOM + MAID ROOM + GUEST ROOM SALEABLE AREA : 4,957.86 SQ.FT. to 4,994.67 SQ.FT.

4 Bedroom Villa (Type A - First Floor) UNIT : 4 BEDROOM + 1 POWDER ROOM + MAID ROOM + GUEST ROOM SALEABLE AREA : 4,957.86 SQ.FT. to 4,994.67 SQ.FT.

4 Bedroom Villa (Type B - Ground Floor) UNIT : 4 BEDROOM + 1 POWDER ROOM + MAID ROOM + GUEST ROOM SALEABLE AREA : 4,957.86 SQ.FT. to 4,994.67 SQ.FT.

4 Bedroom Villa (Type B - First Floor) UNIT : 4 BEDROOM + 1 POWDER ROOM + MAID ROOM + GUEST ROOM SALEABLE AREA : 4,957.86 SQ.FT. to 4,994.67 SQ.FT.

4 Bedroom Villa (Type C - Ground Floor) UNIT : 4 BEDROOM + 1 POWDER ROOM + MAID ROOM + GUEST ROOM SALEABLE AREA : 4,957.86 SQ.FT. to 4,994.67 SQ.FT.

4 Bedroom Villa (Type C - First Floor) UNIT : 4 BEDROOM + 1 POWDER ROOM + MAID ROOM + GUEST ROOM SALEABLE AREA : 4,957.86 SQ.FT. to 4,994.67 SQ.FT.

5 Bedroom Villa (Type A - Ground Floor) UNIT : 5 BEDROOM + 1 POWDER ROOM + MAID ROOM + GUEST ROOM SALEABLE AREA : 5,799.70 SQ.FT. to 5,807.13 SQ.FT.

5 Bedroom Villa (Type A - First Floor) UNIT : 5 BEDROOM + 1 POWDER ROOM + MAID ROOM + GUEST ROOM SALEABLE AREA : 5,799.70 SQ.FT. to 5,807.13 SQ.FT.

5 Bedroom Villa (Type B - Ground Floor) UNIT : 5 BEDROOM + 1 POWDER ROOM + MAID ROOM + GUEST ROOM SALEABLE AREA : 5,799.70 SQ.FT. to 5,807.13 SQ.FT.

6 Bedroom Villa (Type A - Ground Floor) UNIT : 6 BEDROOM + 1 POWDER ROOM + 1 MAID ROOM + 1 STORE ROOM SALEABLE AREA : 7,186.20 SQ.FT.

6 Bedroom Villa (Type A - First Floor) UNIT : 6 BEDROOM + 1 POWDER ROOM + 1 MAID ROOM + 1 STORE ROOM SALEABLE AREA : 7,186.20 SQ.FT.

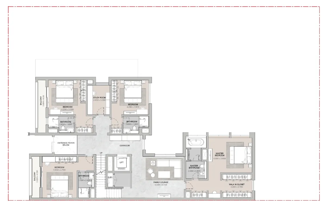
6 Bedroom Villa (Type A - Second Floor) UNIT : 6 BEDROOM + 1 POWDER ROOM + 1 MAID ROOM + 1 STORE ROOM SALEABLE AREA : 7,186.20 SQ.FT.

Video

Attachments

Compare

Urban Luxe Realty

    Have Questions?

    Our Team Is Ready to Assist






    Min length: 2 characters, Max length: 5 characters