Description

Set to be one of the tallest residential towers, Verde by Sobha is an architectural marvel that offers splendid views of Jumeirah Island and Emirates Hills villa communities on one side and the Emirates golf course on the other. Featuring world-class amenities, these exquisite homes are designed to suit the discerning taste of the globetrotters. Verde by Sobha is a 66-storeyed uber-luxury residential tower in Dubai’s coveted district, JLT, with 1 to 3 – bedroom apartments

Overview

  • ID 2297
  • Type
  • Year Built 2020
  • Address Jumeriah Lake Towers
  • Country United Arab Emirates
  • Province/State

Details

  • Property ID 2297
  • Price 2AED / AED
  • Property Type
  • Year Built 2020

Floor Plans

1 Bedroom Apartment (Type A)

  • Size: 876.07 SqFt
  • Bedrooms: 1
  • Bathrooms: 1

UNIT : 1 BEDROOM + 1 POWDER ROOM + 1 BALCONY SUITE : 734.42 SQ.FT. BALCONY : 141.65 SQ.FT. TOTAL : 876.07 SQ.FT.

UNIT: 1 BEDROOM + 1 POWDER ROOM + 1 BALCONY SUITE: 658.64 SQ.FT. BALCONY: 112.48 SQ.FT. TOTAL: 771.12 SQ.FT.

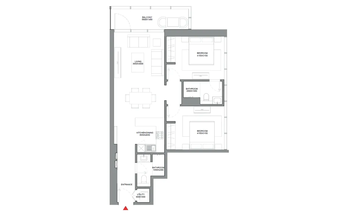
UNIT : 1.5 BEDROOM + 1 STUDY/STORE ROOM + 1 BALCONY SUITE : 896.53 SQ.FT. BALCONY : 139.72 SQ.FT. TOTAL : 1,036.25 SQ.FT.

UNIT: 1.5 BEDROOM + 1 STUDY/STORE ROOM + 1 BALCONY SUITE: 917.62 SQ.FT. BALCONY: 142.19 SQ.FT. TOTAL: 1,059.81 SQ.FT.

UNIT: 1.5 BEDROOM + 1 STUDY/STORE ROOM + 1 BALCONY SUITE: 862.40 SQ.FT. BALCONY: 142.19 SQ.FT. TOTAL: 1,004.59 SQ.FT.

UNIT : 2 BEDROOM + 1 POWDER ROOM + 1 BALCONY SUITE : 909.44 SQ.FT. BALCONY : 108.18 SQ.FT. TOTAL : 1,017.62 SQ.FT.

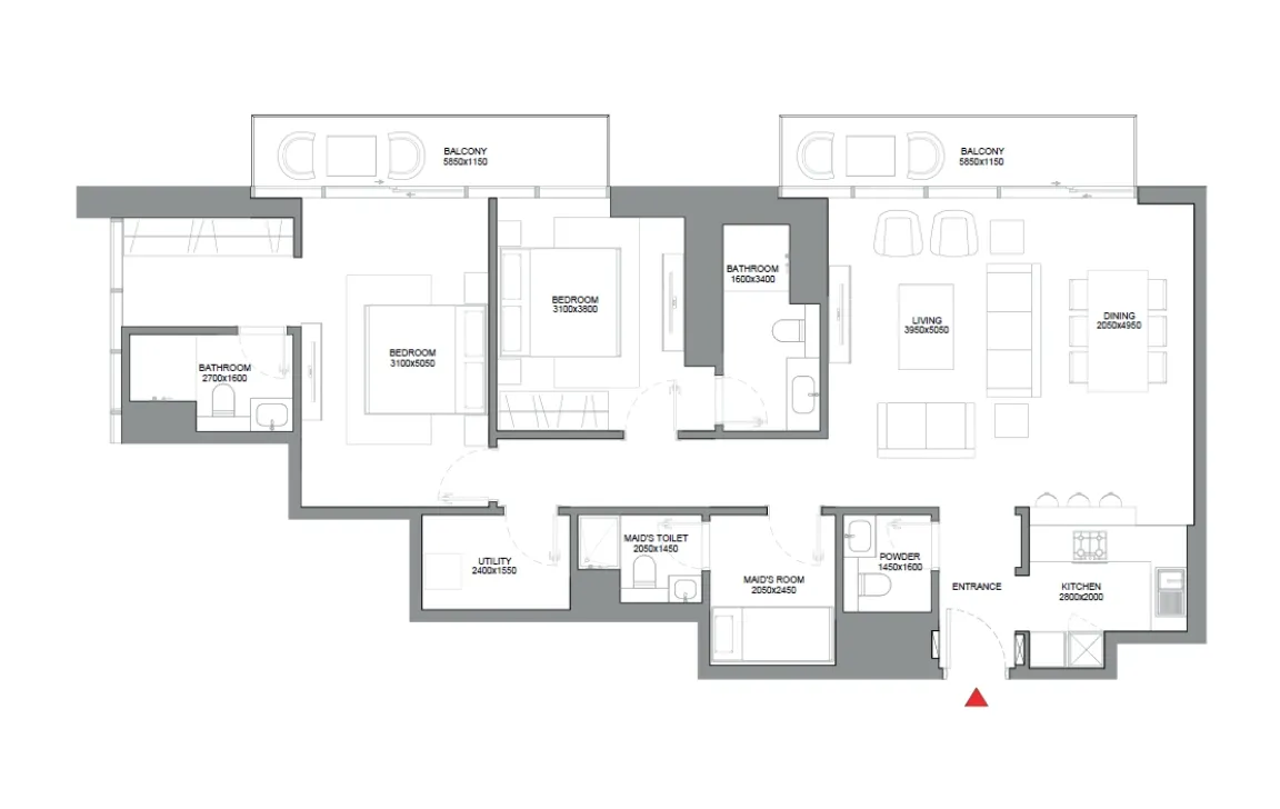
UNIT: 2 BEDROOM + 1 MAID ROOM + 1 POWDER ROOM + 1 BALCONY SUITE: 1,267.34 SQ.FT. BALCONY: 152.20 SQ.FT. TOTAL: 1,419.54 SQ.FT.

UNIT : 2.5 BEDROOM + 1 STUDY ROOM + 1 POWDER ROOM + 1 BALCONY SUITE : 1,234.19 SQ.FT. BALCONY : 131.75 SQ.FT. TOTAL : 1,365.94 SQ.FT.

UNIT : 3 BEDROOM + 1 STUDY/STORE ROOM + 1 MAID ROOM + 1 POWDER ROOM + 1 BALCONY SUITE : 1,646.77 SQ.FT. BALCONY : 139.82 SQ.FT. TOTAL : 1,786.59 SQ.FT.

UNIT: 3 BEDROOM + 1 MAID ROOM + 1 POWDER ROOM + 1 BALCONY SUITE: 1,844.72 - 1,847.41 SQ.FT. BALCONY: 152.31 SQ.FT. TOTAL: 1,997.03 - 1,999.72 SQ.FT.

Video

https://sobha-invest.com/wp-content/uploads/2025/10/Verde-by-Sobha.mp4

Compare

Urban Luxe Realty

    Have Questions?

    Our Team Is Ready to Assist






    Min length: 2 characters, Max length: 5 characters